Relevé Lac
Webcam
6°C
Contact
Démarches et services
Commerce / Artisanat
Déplacements
Environnement
Jeunesse / Scolarité
Santé / Social
Seniors
Services publics
Vie Municipale
Collectivités
Conseil municipal
Citoyenneté
Découvrir Aydat
Services municipaux
Urbanisme
Activités & Loisirs
Associations
Espace Loisirs
Label famille plus
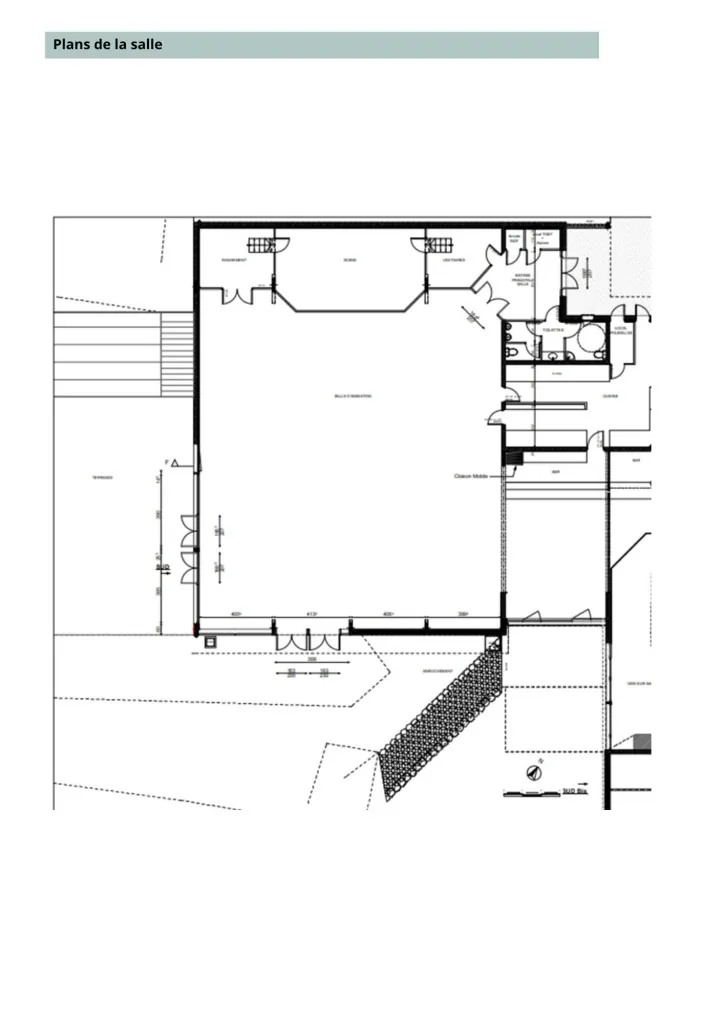
Salles de l’Espace Loisirs
Tarifs abonnements
Salles communales et demande de matériels
Actualités & Manifestations
Actualités
Agenda des manifestations
Annuaire
Carte interactive
Je suis
Je suis un ainé
Je suis un touriste
Je suis un parent
Je suis un jeune
Accueil
Salles de l’Espace Loisirs
Salles de l’Espace Loisirs
Restez à l’affût des dernières nouvelles !
Inscrivez-vous à notre newsletter mensuelle pour connaître tous les évènements du mois à venir.
S‘inscrire
J’accepte de recevoir la newsletter Mairie d‘Aydat.
Lire la politique de confidentialité